Springe auf Hauptinhalt Springe auf Hauptmenü Springe auf SiteSearch
Neue Klempnerfachregel — Ausgabe 2009

Fachlich geregelt

Seit Januar 2010 ist sie nun gültig, die neue Klempnerfachregel des ZVSHK. Zahlreiche Fachleute aus unterschiedlichsten Gremien waren intensiv und über lange Zeiträume mit der Überarbeitung der Fachregeln beschäftigt. Manch Beteiligter sprach gar von einer schweren Geburt, die allerdings nötig wurde, weil das Regelwerk an EU-Recht und EU-Normen anzugleichen war. Am meisten Aufwand verursachte dabei die Angleichung der Berechnungstabellen zur Umsetzung der DIN 10550 – Teil 4 (Windlastnormen) an gültige europäische Normenstandards. Außerdem überrascht das Regelwerk mit neuen Tabellen, zahlreichen Skizzen sowie einem Abbildungsund Tabellenverzeichnis. Eine nicht zu unterschätzende Aufwertung erfährt die Fachregel durch das beigelegte Berechnungsprogramm zur Ermittlung der Windlasten und des entsprechenden Haftbedarfes für Stehfalzbedachungen. Außerdem werden die Verwendung von OSB-Holzwerkstoffplatten, der Brand- und Blitzschutz, Schiebehafte bei strukturierten Trennlagen, Schnappfalzsysteme, die Änderung bei unbelüfteten Metalldachsystemen und die Befestigung von Solarkollektoren behandelt.

Rückblick

Die technischen Richtlinien für die Ausführung von Klempnerarbeiten an Dach und Fassade erscheinen seit 1979 und wurden im Jahre 2003 generell überarbeitet sowie 2005 letztmalig ergänzt. Bevor die aktuelle Fassung des Regelwerks auf dem zurückliegenden Klempnertag präsentiert werden konnte, waren zahlreiche Gespräche nötig. Auf praxisnahe Diskussionen innerhalb der Fachausschüsse und der Bundesfachgruppe Klempnertechnik folgten intensive Dialoge mit Herstellern, Prüfinstituten und Sachverständigen. In Teilbereichen leistete der technische Ausschuss des ZVSHK um den technischen Referenten Leonhard Knobloch regelrechte Pionierarbeit. Zahlreiche Fachtagungen wurden abgehalten, beispielsweise zu den Themen „strukturierte Trennlagen“ oder „Brandschutzeigenschaften harter Metallbedachungen“.

Das ist neu: Ausführung von Ortgängen/Dachrandabschlüssen

Der Tropfkantenabstand von darunterliegenden Bauteilen muss mindestens 20 mm betragen. Bei Verwendung von Kupfer wird empfohlen, einen größeren Mindestüberstand auszuführen. Verunreinigungen durch abtropfendes Wasser sind nicht zu vermeiden. Hinsichtlich der Abstände und Höhen am Ortgang/Dachrand werden folgende Empfehlungen gemacht:

Mindestwerkstoffdicken selbsttragender Anschlüsse und Abdeckungen

Selbsttragende Dachrandabschlüsse, Mauerabdeckungen und Abschlüsse sind mit korrosionsgeschützten Befestigungselementen verdeckt anzubringen. Die Angaben zu den jeweils zulässigen Werkstoffdicken wurden überarbeitet.

Bewegungsaufnahme

Bewegungsmöglichkeiten für Mauerabdeckungen sind entsprechend den nachstehenden Angaben vorzusehen. Möglich sind unter anderem:

  • Stehfalze in verschiedenen Ausführungen bei sehr kurzen Einzellängen
  • Diverse Stoßausbildungen

Praktische Hinweise

Zahlreiche Skizzen verdeutlichen, wie Baudetails ausgeführt werden können, etwa am seitlichen Steildach-Wandanschluss bei Putz/WDVS-Fassaden. Das Detail 56 zeigt, dass es wichtig ist, Überhangprofile mittels Dicht- oder Kompriband am Grundmauerwerk abzudichten. Hintergrund: Immer wieder kommt es zu Wassereintritt durch Haarrissbildung in den Putzflächen. In der Folge kann auf dem Grundmauerwerk ablaufende Feuchtigkeit unkontrolliert in die Konstruktion eindringen.

Neue Regenspenden gemäß Kostra-Atlas

Ergänzend zur DIN 1968 und zur neuen Fachregel ist ein Berechnungsprogramm zur Rinnenbemessung innenliegender und vorgehängter Dachrinnen erhältlich. Berücksichtigt werden dabei unter anderem die Werte

  • r(5,5) Die Berechnungsregenspende ist im Normalfall die regionale Fünfminutenregenspende, die einmal in 5 Jahren erwartet werden muss. Grundlage ist die DIN 1986-100, Abschnitt 9.3.3
  • r(5,100) Entwässerungs- und Notüberlaufsystem müssen gemeinsam mindestens das am Gebäudestandort über 5 Minuten zu erwartende Jahrhundertregenereignis nach DIN 1986-100, Abschnitt 9.3.8.2 entwässern können

Das Berechnungsprogramm zur Rinnenbemessung ist übersichtlich und leicht zu handhaben

Blitz- und Brandschutzbestimmungen für Metalldächer

Metalldachdeckungen gelten gemäß DIN 4102-4/A1 als widerstandsfähige Bedachungen (harte Bedachung) gegen Flugfeuer und strahlende Wärme. Die Unterscheidung erfolgt nach:

  • Großformatig selbsttragend und nicht selbsttragend aus Al, St, Cu, SS
  • Großformatig profiliert und nicht selbsttragend in handwerklicher Falztechnik aus TiZn
  • Kleinformatig
  • Kernverbundelemente mit beidseitiger Deckschicht aus Metall

Genaue Bestimmungen sind in den jeweiligen Landesbauordnungen enthalten. Eng verwandt mit dem Thema ist auch die Blitzschutzforderung in Abhängigkeit von Nutzung und Gebäudeart. Die Blitzschutznorm bescheinigt Metalldächern als natürliche Fangeinrichtung geeignet zu sein. Voraussetzungen sind:

  • Verschrauben und Vernieten in geringen Abständen
  • Falzen, Löten, oder Schweißen
  • Falzen, Bördeln, Nieten, Schrauben, Einhängen, Klemmen und Pressen mit nachgewiesener Typenprüfung (Systemelemente)
  • Fachgerechte Ausführung und mit seiner Unterkonstruktion standsicher verbunden
  • Kontrolle und Reparatur nach Blitzschlag

Einen Sonderfall stellen Solaranlagen dar. Hier ist zur Integration in Blitzschutzanlagen der Anschluss von Kollektoren oder Modulen an den Potenzialausgleich vorzusehen. Errichter von Metalldächern oder Dachsystemen sind in der Pflicht, sogenannte Konformitätsbescheinigungen an den Blitzschutzersteller weiterzureichen.

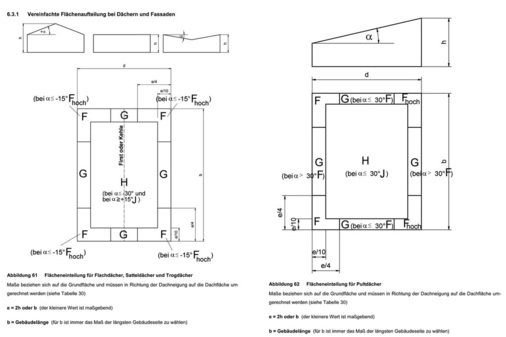
DIN 1055- 4, Berücksichtigung von Windlasten bei Metalldächern und Fassaden

Die seit dem 01.01.2007 gültige und 108 Seiten starke Norm wurde in den Fachregeln komprimiert umgesetzt. Somit kann eine einfache Einteilung der Eck-, Rand- und Innenbereiche mit Haftabständen und Haftanzahlen in Tabellenform erfolgen. Diverse Tabellen führen zudem die nach Regionen definierten Windlastzonen auf – ein Dateidownload, der Berechnungstabellen und Windlastzonen enthält, ist in der Mediathek auf https://www.baumetall.de/ abrufbar. Ergänzend leistet das in den Fachregeln integrierte Berechnungsprogramm von Dietmar Schuh wertvolle Dienste und erlaubt die einfache Bestimmung entsprechender Parameter. Zur vereinfachten Dachflächeneinteilung und Berechnung werden folgende Werte benötigt:

  • b Länge
  • d Breite
  • h Höhe
  • F, G, H, J Dachteilflächen
  • Fhoch hochliegender Eckbereich bei Pult- und Trogdächern
  • A, B Wandteilflächen
  • α Dachneigung
  • e Hilfsgröße

Mit der Anpassung der DIN 1055 wurden auch die wesentlichen Haft-Aufgaben neu definiert. Demnach dienen Hafte der indirekten Befestigung auf der Unterkonstruktion. Sie müssen temperaturbedingte Längenänderungen und Windsogkräfte aufnehmen können. Speziell bei der Verwendung von strukturierten Trennlagen ist der Einsatz geeigneter verwindungsfreier Hafte oder spezieller Wirrgelegehafte vorzusehen.

Ausführung von nicht belüfteten, wärmegedämmten Metalldächern

Im Hinblick auf die Dachflächen moderner Architektur, sowie den immer höheren Anforderungen an baulichen Wärmeschutz wird das nicht belüftete Metalldach künftig stärker zur Anwendung kommen. Zahlreiche Konstruktionsbeispiele veranschaulichen die fachgerechte Ausführung nicht belüfteter Dachaufbauten. Diese Rubrik wurde vollständig überarbeitet und stellt diverse am Markt erhältliche Systeme vor.

Schalungen aus Holzwerkstoff­platten

Die Bezeichnung OSB steht für Oriented Strand Board. OSB-Holzwerkstoffplatten sind Flachpressplatten aus langen, dünnen Schälspänen. Diese „Strands“ werden „orientiert“ in sich kreuzenden Schichten zu einem Plattenkuchen gestreut. Neu sind die Verarbeitungshinweise für den Klempnerbereich:

  • Mindestens Nutzungsklasse NKL 2 oder der Holzwerkstoffklasse HWK 100
  • Nur vollständige PMDI-Verklebung, Klasse OSB/3 und OSB/4
  • Unter dem Deckmetall eine strukturierte Trennlage
  • Bei Verklebung mit einer bitumenhaltigen Klebemasse ist keine strukturierte Trennlage erforderlich
  • Mindestdicke d ≥ 22 mm und die Maximallänge l ≤ 2,5 m
  • Zur Vermeidung von Verwerfungen sind Fugen anzuordnen – d.h. die Platten dürfen nicht press (lückenlos) gestoßen werden

Modifizierte Dachneigungstabelle

Unterkonstruktionen für Metalldächer sollten möglichst mit einer Dachneigung von> 7° geplant und ausgeführt werden. Ab dieser Dachneigung ist eine entsprechende Sicherheit hinsichtlich der Unebenheiten und Durchbiegung der Unterkonstruktion gegeben.

Klemmhalter

Die solare Nutzung von Metalldächern und -fassaden nimmt weiter zu, klare Herstellerangaben zu Klemmbefestigern und speziell zum Lastabtrag in den bauseitigen Untergrund sind selten. Der Zentralverband stellt in den Fachregeln architektonisch anspruchsvolle Gestaltungsmöglichkeiten vor. Beispielsweise liegen die Vorteile von Indachkollektoren in der sicheren Einfassung sowie guten statischen Lösungen. Aufdachkollektoren benötigen zwar keine Einfassungen aus Metall, jedoch werden erhöhte statische Anforderungen, an die Unterkonstruktion gestellt. Eingesetzt werden daher vor allem geeignete Klemmbefestiger. Bei aufgeständerten Anlagen erhöhen sich die statischen Anforderungen erheblich – diese Anlagen weisen jedoch bessere Schneefangeigenschaften auf. Auch über die Montage von auflaminierten Solaranlagen oder Trittfangstufen auf Stehfalzdächern wird informiert und auf die entsprechende Berücksichtigung der DIN 1055 hingewiesen.

Schlussbemerkung

Die neue Klempnerfachregel entbindet Unternehmer nicht von Eigenverantwortung. Die Fachregel ist ausdrücklich kein Lehrbuch und lässt genügend kreativen Freiraum zur Umsetzung innovativer handwerklicher Lösungen. Das Regelwerk entspricht dem anerkannten Stand der Technik und wird von Planern, und dem ausführenden Handwerk gleichermaßen angewandt.

AUTOR: Ulrich Leib

Fachregelinfo Kompakt

Die neue, praxisorientierte Struktur der Klempnerfachregeln bildet die Arbeitsgrundlage für Fachbetriebe, Architekten und Planer zur Gestaltung und Ausführung von Metalldächern, allgemeinen Klempnerarbeiten und Fassaden. Das Regelwerk informiert textlich und mit beispielhaften Zeichnungen zur Veranschaulichung über fachgerechte Ausführungen von allgemeinen Klempnerarbeiten, Metalldeckungen und Fassadenbekleidungen. Es befasst sich mit Themenbereichen wie:

  • Angaben zum Einsatz von geeigneten Werkstoffen
  • Neue europäische Wärmedämmstoff-Normen
  • Neue europäische Windlast-Normen einschließlich Berechungsprogramm zur ordnungsgemäßer Befestigung von Metalldeckungen und Fassadenbekleidungen entsprechend den vorherrschenden Windbelastungen
  • bauphysikalischen Zusammenhängen unter Berücksichtigung der jeweiligen Unterkonstruktion
  • Bemessung und Ausführung der Dachentwässerung
  • Verarbeitungsanleitungen zum Löten von Kupfer, Titanzink und Edelstahl

Zu beziehen sind die Richtlinien beim Zentralverband Sanitär Heizung Klima, Rathausallee 6, 53757 St. Augustin, Fax: (0 22 41) 2 13 51. Der DIN A-4 Ringbuchordner inkl. Inhalts-CD-ROM und der zum Zeitpunkt der Bestellung jeweils aktuellen Ergänzungslieferung hat die Bestell-Nr. T01/2.

Preis für Mitglieder der SHK-Organisation beträgt 139,00 €, für Nichtmitglieder 229,00 € zzgl. MwSt., Porto und Versandkosten.

AUTOR

Ulrich Leib

ist Bundesfachgruppenleiter Klempnertechnik und Geschäftsführer der Leib GmbH in Moorenweis bei München. Er spendet sein Honorar an das Klempnermuseum – herzlichen Dank!

Jetzt weiterlesen und profitieren.

+ BM E-Paper-Ausgabe – jeden Monat neu
+ Kostenfreien Zugang zu unserem Online-Archiv
+ Themenhefte
+ Webinare und Veranstaltungen mit Rabatten
uvm.

Premium Mitgliedschaft

2 Monate kostenlos testen

Tags