Springe auf Hauptinhalt Springe auf Hauptmenü Springe auf SiteSearch

VORGEHÄNGT & HINTERLÜFTET

Im Rahmen des BAUMETALL-Treffs am 9. November 2017 informierte Frank Neumann (Senior Projektmanager Vertrieb und Marketing bei Rheinzink in Datteln) über das neue viertägige Fassaden-Workshop-Programm. Das Angebot vermittelt den Teilnehmern die Fähigkeit

  • Unterkonstruktionen produktspezifisch zu planen
  • Aufmaße mit modernen Methoden (Lasertechnik) zu erstellen
  • Bauphysikalische Bedingungen und thermische Ausdehnungskoeffizienten zu berücksichtigen
  • Bekleidungsprofile nach entsprechender Rasterung/Stückliste in Einzelflächen aufzuteilen

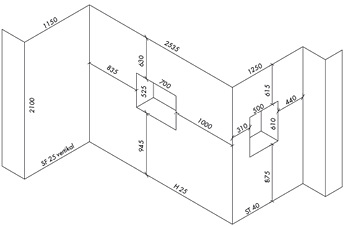
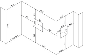
Außerdem erfahren die Teilnehme,r wie die systemspezifische Befestigung von Unterkonstruktion und Metall-Fassaden-Elementen funktioniert. Weitere Punkte sind die Ausarbeitung von Anschlussdetails sowie die Ermittlung von Baubreiten und Baulängen von Rheinzink-Paneelen. Der Workshop vermittelt darüber hinaus in einem praktischen Training die Montage der zuvor eigenständig geplanten Metallfassade. Unmittelbar vor dem Start der Fassadenmontage reflektieren die aus jeweils zwei Personen bestehenden Montageteams ihre zuvor erbrachte Planungsleistung. Dieser Vorgang ist fast immer mit einem entsprechenden Erkenntnisgewinn verbunden. Erst dann erfolgt die Entscheidung, welche der beiden Lösungen in der Praxis umgesetzt wird.

Das sagt der Rheinzink-Profi

Frank Neumann zur Notwendigkeit einer lückenlosen Fassadenplanung: „Abgesehen von der enormen Zeitersparnis bei der Montage trägt eine exakte Planung zur genauen Kostenermittlung sowie zur Koordination der Montageabläufe bei. Folglich werden die Montage- und Gerüststandzeiten minimiert, was wiederum zur Kosteneinsparung führt. Letztendlich ist die Qualität der Fassadenbekleidung in hohem Maße von der Eigenschaft der zuvor erbrachten Planungsleistung abhängig. Ein entsprechend professionelles Ergebnis sorgt nicht nur für zufriedene Kunden, sondern darüber hinaus als Referenz für neue Aufträge und somit für mehr Spaß an der Arbeit!“ Als weiteres Bonbon unterstützt Rheinzink seine Partnerbetriebe mit folgendem Angebot: Benötigen Rheinzink-Profiwelt-Partner eine prüffähige statische Berechnung, erhalten sie diese Leistung exklusiv gegen Vorlage entsprechender Barren sowie eines Nachweises der Kaufleistung in Form eines Lieferscheins vom Fachhandel o. Ä.

Alles in allem stellt das Workshopangebot der Titanzink-Spezialisten aus Datteln eine praxisorientierte Hilfestellung dar. Diese ist für Einsteiger in den Klempnerfassaden-Markt besonders attraktiv. Dabei ist es unerheblich, ob Rheinzink-Systemfassadenelemente oder aus Rheinzink-Titanzink selbst hergestellte Fassadenbauteile zum Einsatz kommen. Weitere Informationen zu Terminen und Workshop-Kosten sind auf der Rheinzink-Internetseite abrufbar.

www.rheinzink.de

Jetzt weiterlesen und profitieren.

+ BM E-Paper-Ausgabe – jeden Monat neu
+ Kostenfreien Zugang zu unserem Online-Archiv
+ Themenhefte
+ Webinare und Veranstaltungen mit Rabatten
uvm.

Premium Mitgliedschaft

2 Monate kostenlos testen